
即使选材使用优质钢材,在广泛使用的大型钢板...

粉煤灰钢板仓解决了电厂排灰难的问题,既解决...

大型钢板库时应注意哪些方面? 1.卸出钢板仓时...

1、为确保粉煤灰库的安全性能及其使用寿命,必...

聊城九洲钢板仓建设有限公司为全国各地热电厂...

聊城九洲钢板仓建设有限公司为陕西省渭河热电...

5万吨粉煤灰存储钢板仓粉煤灰综合利用五万吨粉...

九洲钢板仓与华能国际电力集团分公司客户关系...

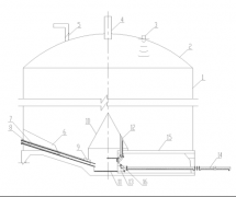
本大型钢板库在库底中心建有一锥形封闭减压锥...

钢板仓喷砂工艺要求 1、 保持压缩空气的压力在...